Leistungen
Wie ich arbeite
Referenzen
Über mich
Kooperationspartner
Kontakt
Menü
Menü
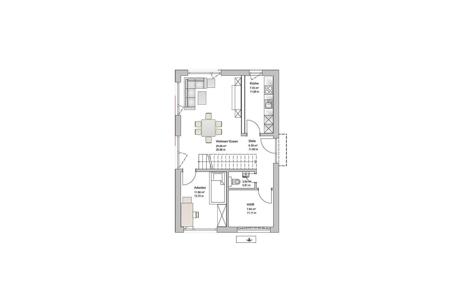
Flachdach Holzhaus funktional in Erfurt
Hauptanforderungen:
2 Vollgeschosse
Holzhaus
Flachdach
Bauhausstil
B-Plan
Rhombusschalung Holz
Zurück
Weiter
zur Übersicht
Satteldachhaus 2 Geschosse klein aber fein in Darmstadt
Satteldachhaus Countrystile in Holz bei Weimar
Nach oben scrollen