Leistungen
Wie ich arbeite
Referenzen
Über mich
Kooperationspartner
Kontakt
Menü
Menü
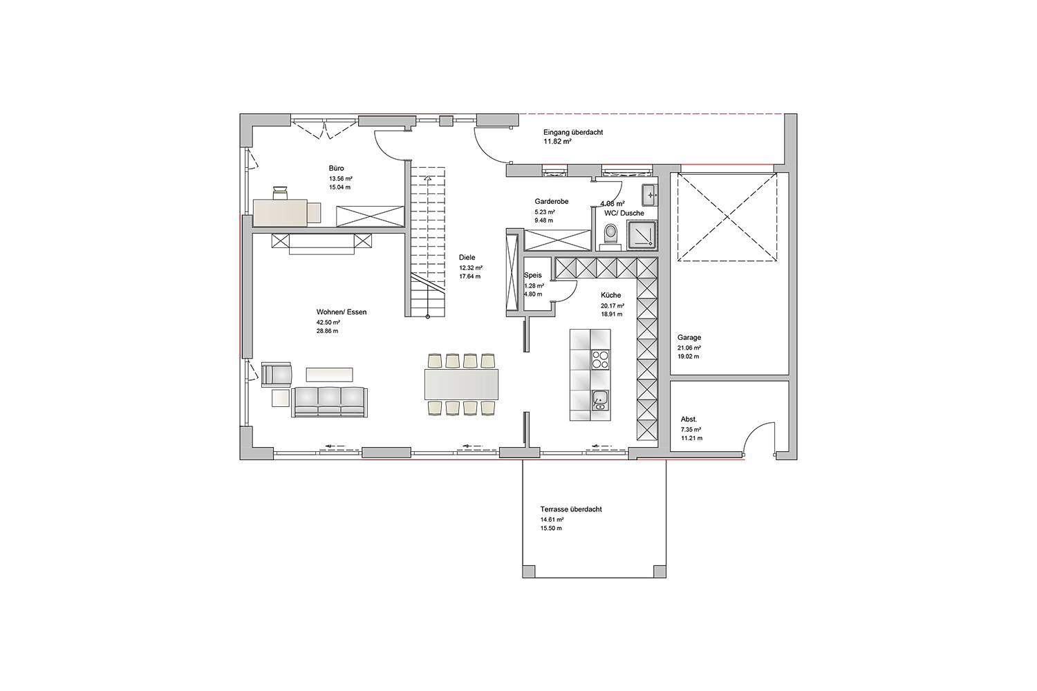
Flachdachhaus mit Klinkerflächen in Offenbach
Hauptanforderungen:
2 Vollgeschoss
großer Balkon im Obergeschoss
Flachdach
Bauhausstil
B-Plan
Klinkerflächen in der Fassade
Zurück
Weiter
zur Übersicht
Flachdachhaus am Hang in Kelkheim
Flachdachhaus mit Staffelgeschoss in Hanau
Nach oben scrollen