Leistungen
Wie ich arbeite
Referenzen
Über mich
Kooperationspartner
Kontakt
Menü
Menü
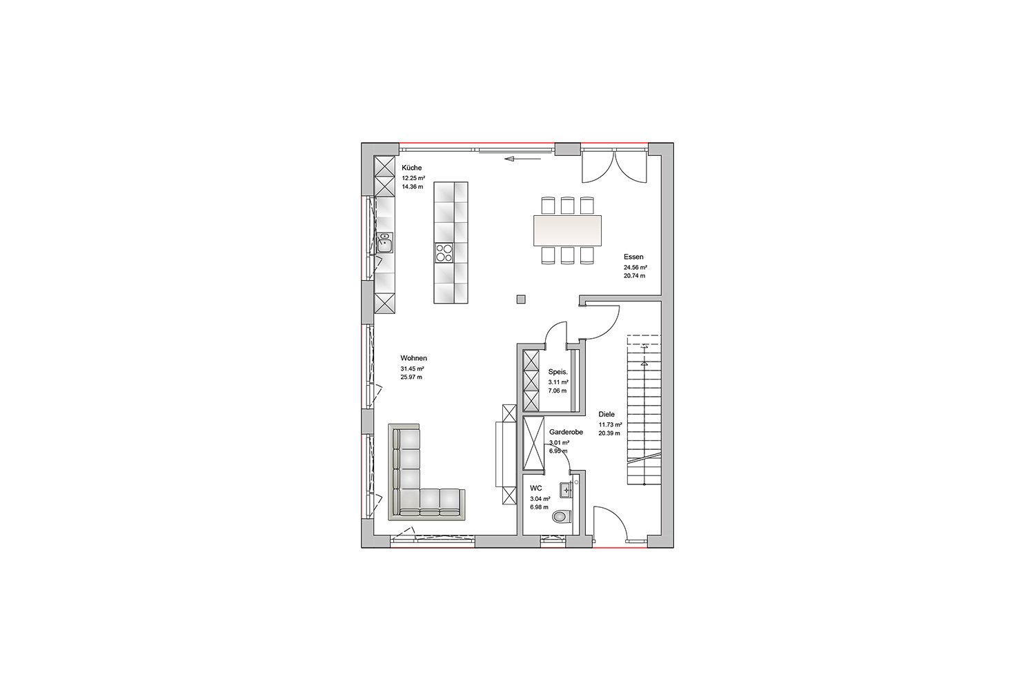
Flachdachhaus mit Staffelgeschoss Bad Vilbel
Hauptanforderungen:
2 Vollgeschosse
Staffelgeschoss
Flachdach
Bauhausstil
Bebauung nach §34 BauGB
Haus mit Keller
Zurück
Weiter
zur Übersicht
Werdauer Weg Mehrfamilienhaus in Erfurt
Satteldachhaus am Hang in Rödental
Nach oben scrollen