Kleines Flachdachhaus in Erfurt

Hauptanforderungen:

  • 2 Vollgeschosse
  • Fassadenrücksprung im Erdgeschoss
  • Flachdach
  • Bauhausstil
  • B-Plan
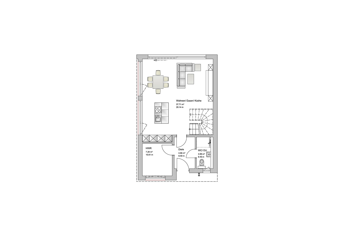
  • Wohnen, Essen, Küche in L-Form