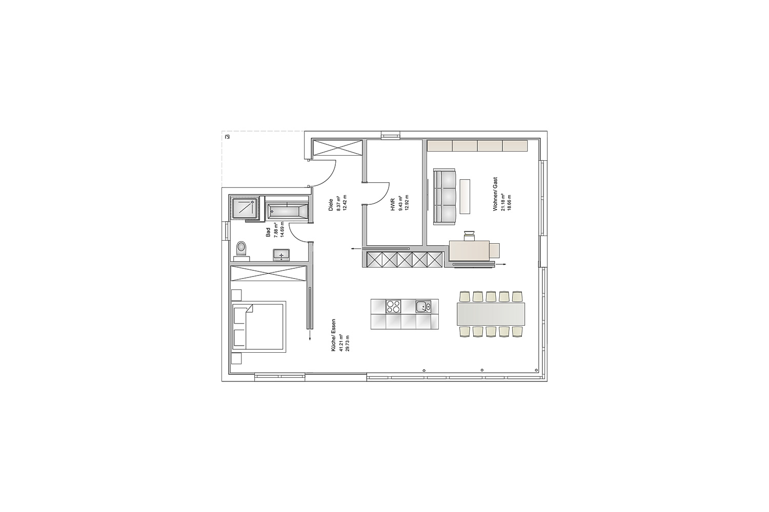
Moderner Bungalowstile mit zusätzlichem Dachausbau
Hauptanforderungen:
- 1 Vollgeschoss
- Bungalow mit zusätzlichem Dachausbau
- Satteldach
- große Fenster
- Bebauung nach §34 BauGB
- offenes Wohnen auf einer Ebene
Hauptanforderungen:

Satteldachhaus 2 Geschosse klein aber fein in Darmstadt