Leistungen
Wie ich arbeite
Referenzen
Über mich
Kooperationspartner
Kontakt
Menü
Menü
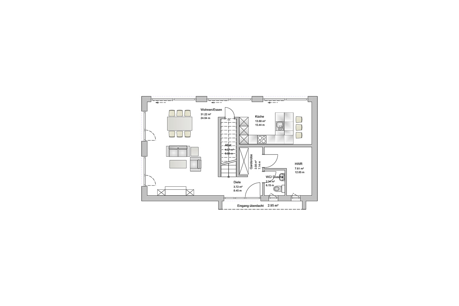
Schmales Satteldachhaus Erfurt
Hauptanforderungen:
2 Vollgeschosse
Satteldach
sehr schmales Grundstück
große Fensterflächen zum Garten
Bebauung nach §34 BauGB
gerade Treppe
Zurück
Weiter
zur Übersicht
Flachdachhaus mit Staffelgeschoss im Taunus
Satteldach mit 2 Geschossen in Thüringen
Nach oben scrollen