Leistungen
Wie ich arbeite
Referenzen
Über mich
Kooperationspartner
Kontakt
Menü
Menü
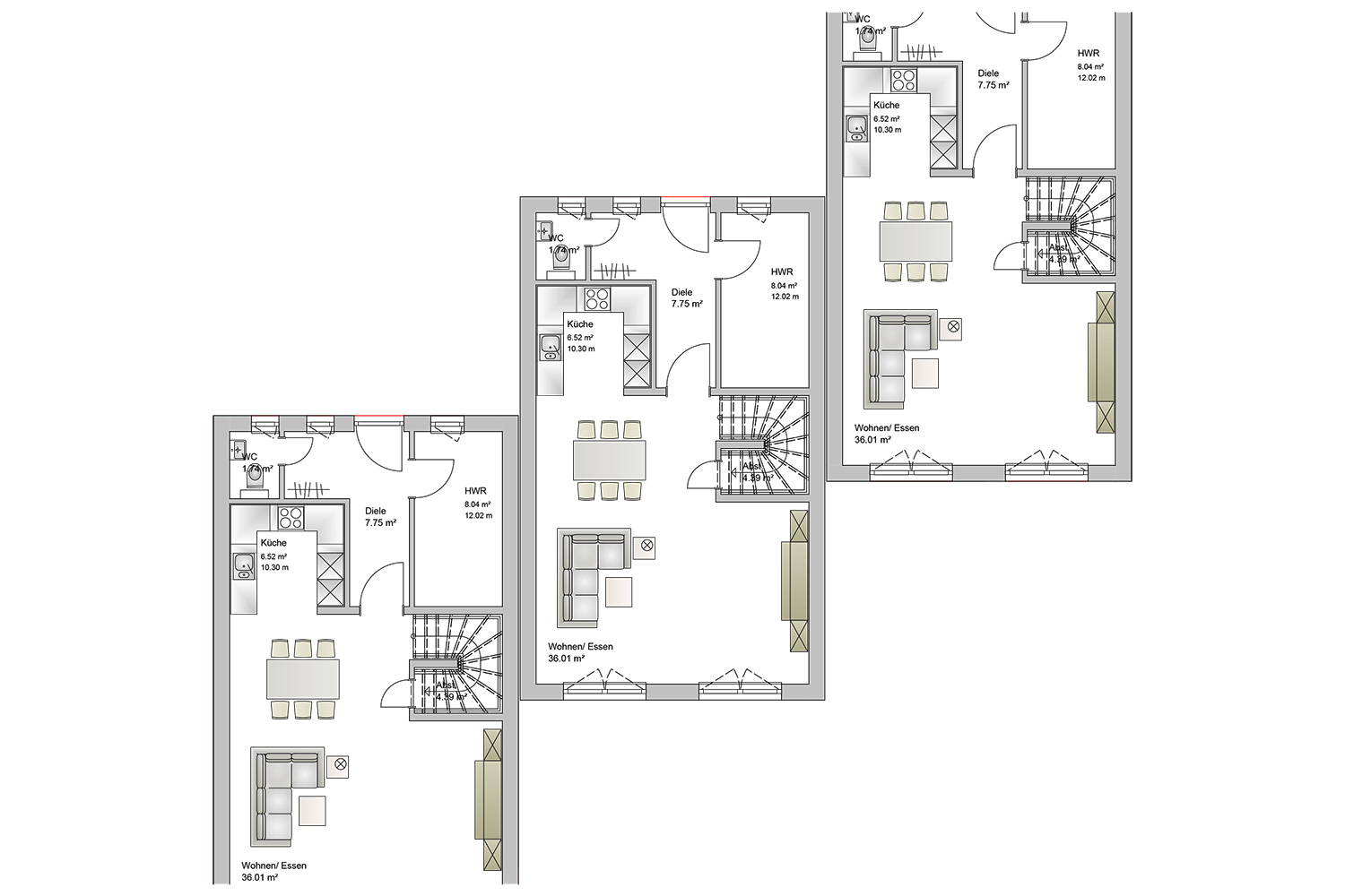
versetzte Reihenhaeuser Flachdach Darmstad
Hauptanforderungen:
2 Vollgeschosse
Reihenhaus
Flachdach
Bauhausstil
Bebauung nach §34 BauGB
versetzte Anordnung
Zurück
Weiter
zur Übersicht
Kettenhaeuser in Weimar
Holzhaus Klassischer Zweigeschosser für die junge Familie
Nach oben scrollen