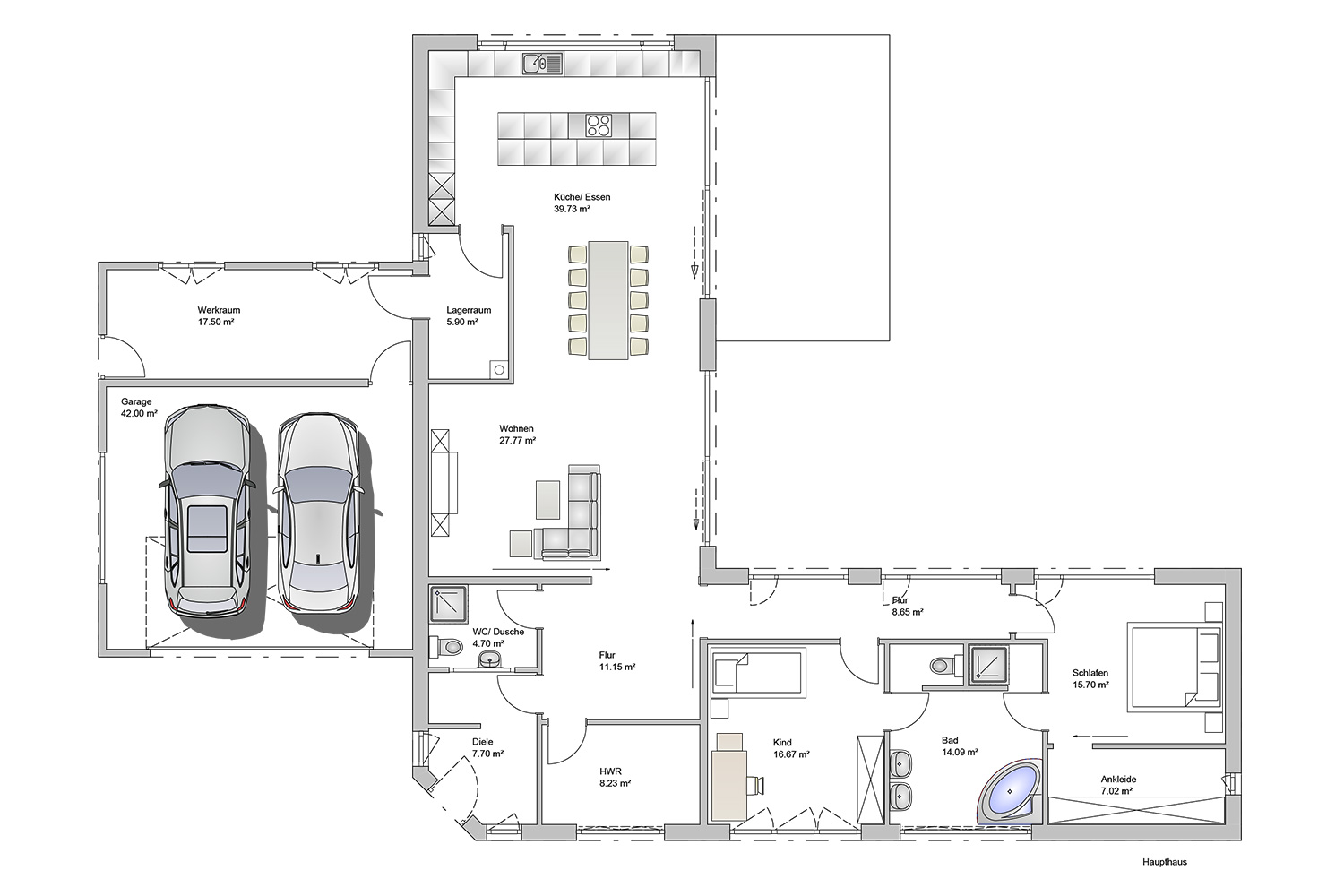
Walmdachbungalow in Rhön

Hauptanforderungen:

  • 1 Vollgeschoss
  • Winkelbungalow
  • große Fensterfronten
  • offener Wohnbereich mit Küche
  • Bebauung nach §34 BauGB
  • überdachte Terrasse