Leistungen
Wie ich arbeite
Referenzen
Über mich
Kooperationspartner
Kontakt
Menü
Menü
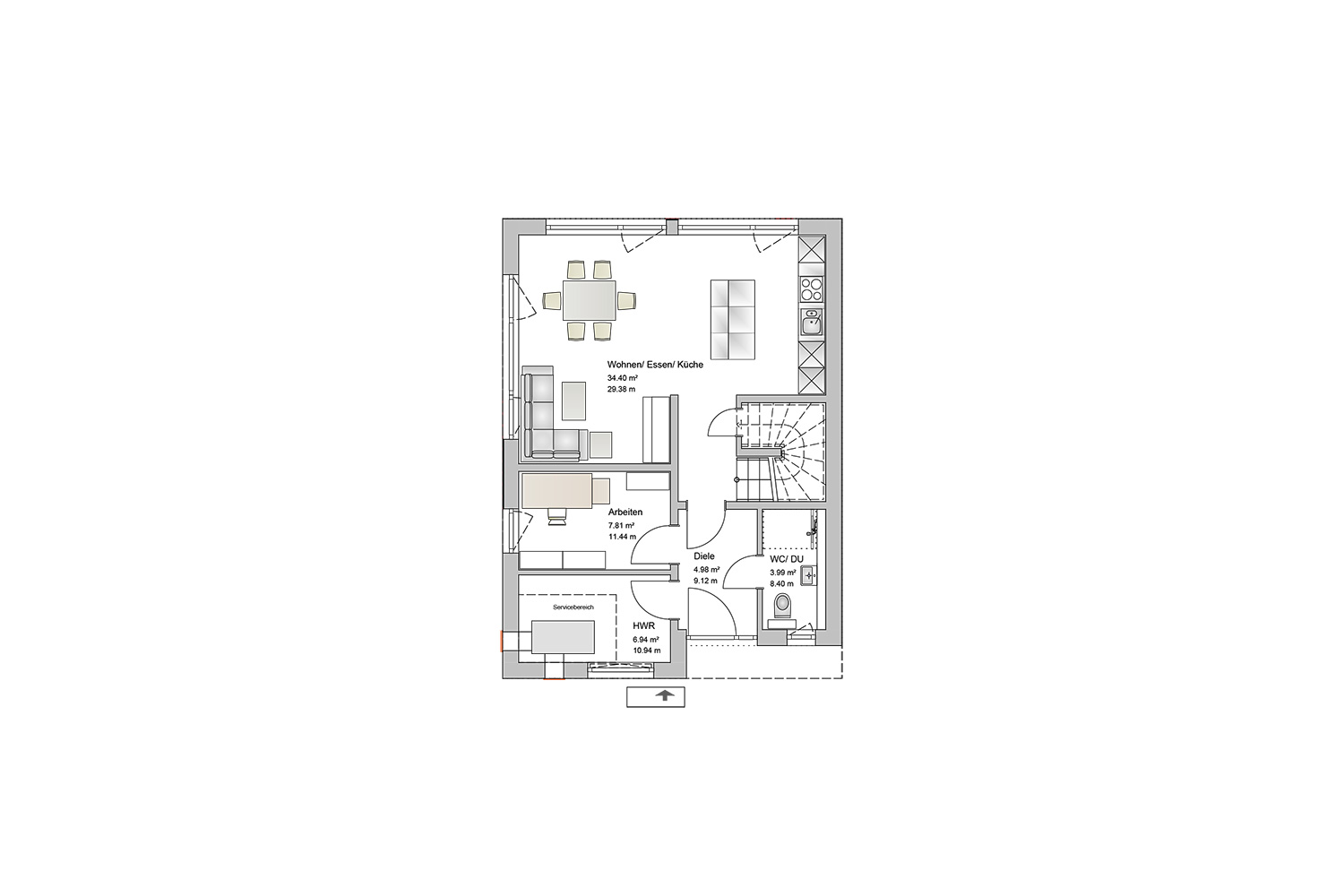
Flachdachhaus Bauhaus in Erfurt
Hauptanforderungen:
2 Vollgeschosse
Eingang überdacht
Flachdach
Bauhausstil
B-Plan
vertikale Holzelement in der Fassade
Zurück
Weiter
zur Übersicht
Satteldachhaus mit hohem Kniestock und Flachdachgaube
Satteldachhaus mit Flachdachgaube Südhüringen
Nach oben scrollen