Satteldachhaus mit Flachdachgaube Südhüringen

Hauptanforderungen:

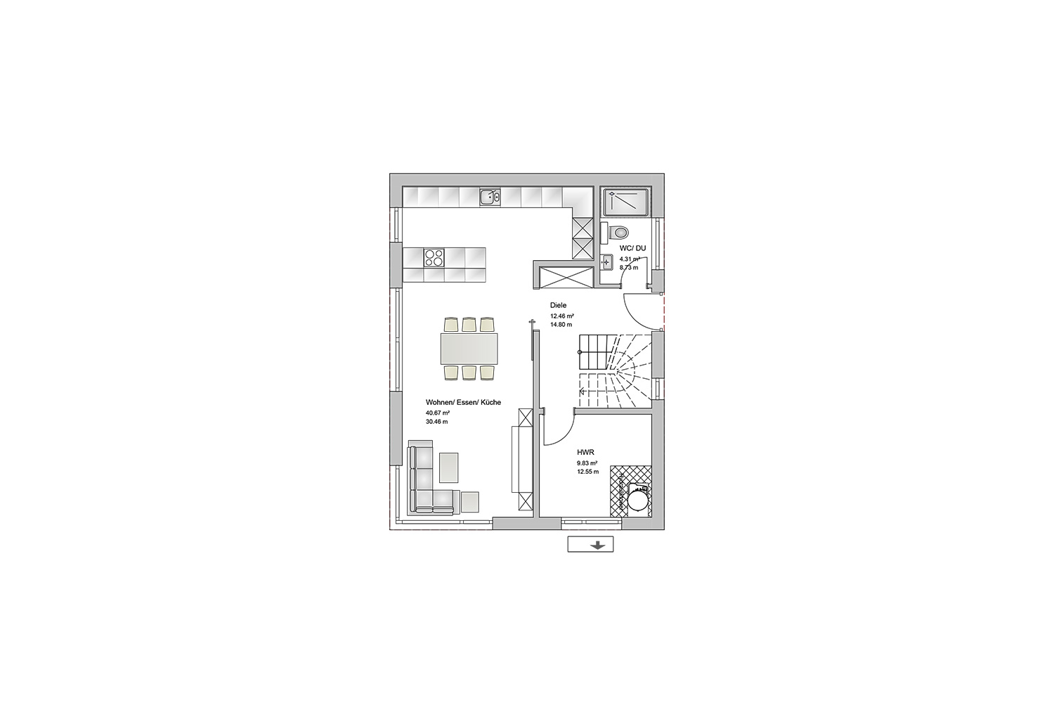
  • 1 Vollgeschoss
  • großes Eckfenster
  • Flachdacherker
  • Ankleide am Schlafzimmer
  • B-Plan
  • offener Wohn- Essbereich mit Küche