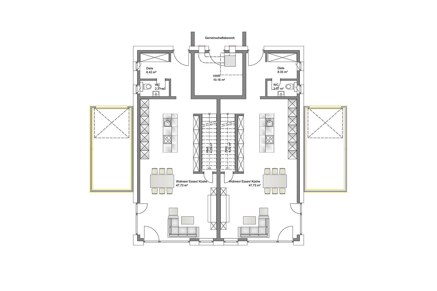
Modernes Zweifamilienhaus in Offenbach

Hauptanforderungen:

  • 2 Vollgeschosse
  • Passivhaus
  • Flachdach
  • Bauhausstil
  • B-Plan
  • Zweifamilienhaus