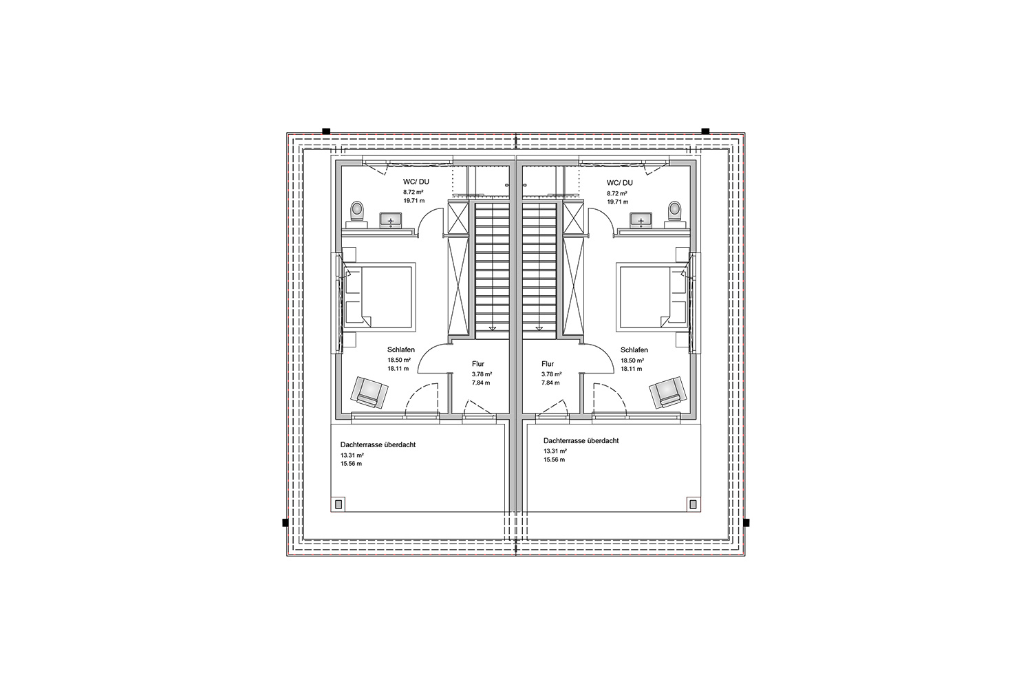
Großes Doppelhaus in Oberursel

Hauptanforderungen:

  • 2 Vollgeschosse
  • Staffelgeschoss
  • Walmdach
  • Bauhausstil
  • B-Plan
  • Haus mit Keller