Leistungen
Wie ich arbeite
Referenzen
Über mich
Kooperationspartner
Kontakt
Menü
Menü
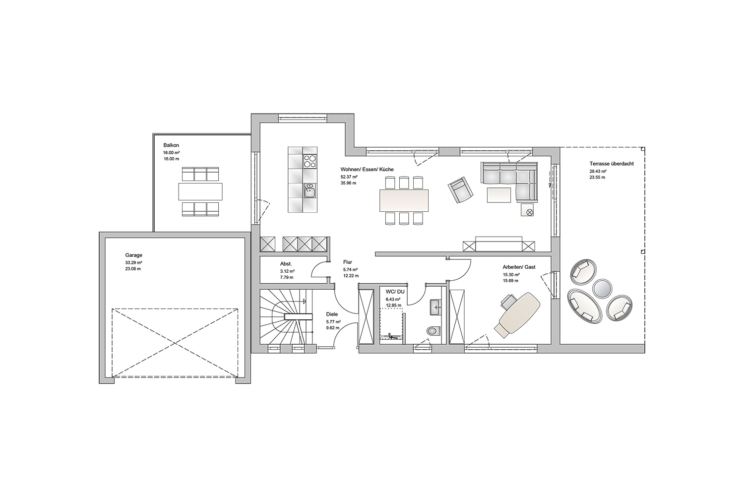
Unterkellerter Bungalow bei Coburg
Hauptanforderungen:
1 Vollgeschoss
Walmdach
Hanglage
überdachte Terrasse
Bebauung nach §34 BauGB
Haus mit Keller
Zurück
Weiter
zur Übersicht
Flachdachbungalow am Hang Königstein Taunus
Großes Doppelhaus in Oberursel
Nach oben scrollen